La firma de arquitectos Alventosa Morell ha desarrollado la “Casa GG”, un proyecto arquitectónico que respeta la naturaleza y genera un mínimo impacto ambiental, donde ademas convergen beneficios sociales, culturales y medioambientales.
Cada día vemos como las grandes urbes del mundo se ha dado paso, imponiendo un paisaje de concreto sobre bosques, ríos y ecosistemas asentados por miles de años. Infortunadamente, cada vez más encontramos proyectos que han ido devastando los entornos naturales que nos quedan.
Esta casa bioclimática cuenta con un sistema sustentable que permite utilizar de manera eficiente los recursos naturales.
Los arquitectos, después de realizar un estudio detallado de la zona, el tipo de vegetación que allí prevalece, el tipo de suelo, sus condiciones climáticas, e incluso las especies animales que viven o transitan por estas áreas, desarrollaron una construcción que se ha fusionado con el propio hábitat de estas especies vegetales y animales, respetando la naturaleza y “pidiendo permiso” a esta para construir dentro de su espacio.
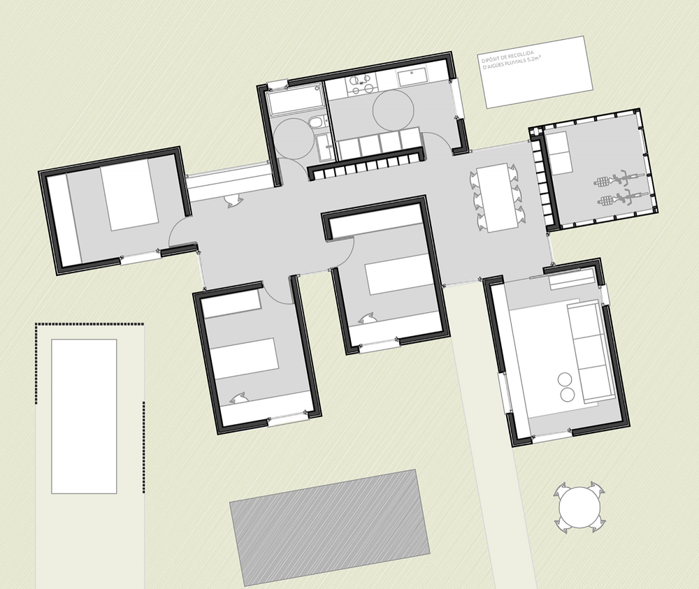
El diseño personalizado, adaptado a las condiciones del terreno, consiste en 6 módulos prefabricados de madera donde las condiciones de clima pueden controlarse por medio de un recolector de energía solarubicado entre módulos que funciona durante el invierno como una especie de invernadero y que puede ser transformado en una terraza cubierta vinculada al jardín cuando lleguen las épocas calurosas del verano.
Varias de las formas en que este proyecto busca generar un mínimo impacto ambiental son:
- El trabajo casi exclusivo con madera permitió optimizar los detalles y los costos de las construcciones, logrando que la casa se integrara con el ambiente natural. El proyecto fue realizado en Santa Maria de Palautordera, Barcelona, España, donde es muy característica la diversidad en la vegetación.
- Los materiales que se utilizaron en la construcción fueron tomados de zonas cercanas, evitando el transporte desde áreas remotas y su subsecuente contaminación, ademas de utilizar materiales reciclados, madera de abeto y celulosa.
- Se evitó la condensación al utilizar materiales que respiran.
- La construcción de esta casa demandó un 76,77% menos de energía que la construcción de un proyecto tradicional con características similares.
Imágenes por Alventosa Morell.









